Mino
Located in Herne Hill, London, Mino Pottery Painting Cafe offers a perfect balance of craft, good food and calming atmosphere.
-
Consultation
- Brand design
-
Spatial planning
-
Interior design
-
Supply & installation
-
Aftercare
When Liezel first approached Catersales, her vision was to create a Pottery Painting Café with a minimal, monochrome interior that allowed the vibrancy of the pottery to take centre stage. The aim was to design a calming, functional environment where guests could step away from the noise of the outside world and enjoy the mindful process of painting pottery.

Inspired by Japanese culture and pottery, we ensured that functional minimalism formed the foundation of the space. Every detail was carefully considered to reflect Liezel’s passion while delivering a unique and commercially effective environment.
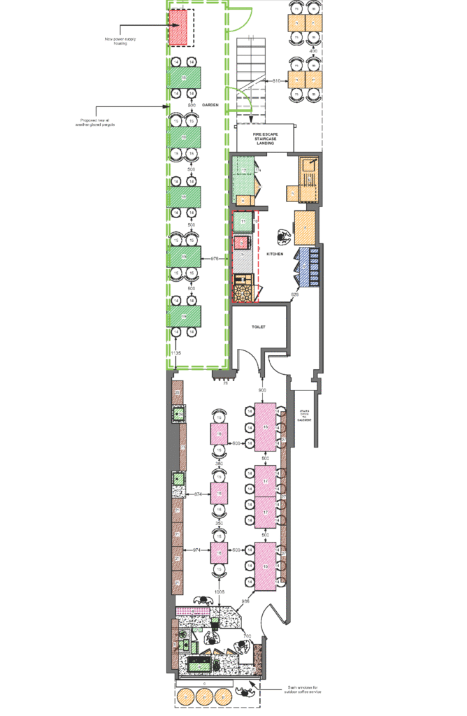
The concept was built around a transitional business model and versatile interior, catering to a wide range of social groups—from children’s pottery parties to relaxed evening date nights with small plates and wine. The shop site also provided the opportunity to install a weatherproof pergola at the side of the building, creating additional seating and a cosy setting for date nights.
A thoughtful layout to Mino’s shop design allowed us to zone the window space with a multifunctional service counter—serving as a reception area, collection point, café counter, and even a serving hatch through the sash window. This strategic design reduced unnecessary foot traffic, maximised seating, and created valuable wall space for bespoke shelving to showcase the beautiful ceramic pieces on offer.