TAKSIM
Mezze & GrillÂ
A Turkish-style restaurant and takeaway located at 99 London Road in Maidstone, UK, known for its flavourful Mediterranean and Turkish dishes and friendly service. The menu features a variety of freshly prepared kebabs, grilled meats, mezze, salads and other favourites, often praised for generous portions and quality ingredients.
Nuh came to us with a clear vision: to create a new kebab destination on London Road in Maidstone. With successful shops already established in London, this new venture was an opportunity to rebrand and introduce something fresh. His aim was to create a modern, warm, and uplifting space while staying true to authentic Turkish culture and cuisine. Our branding and interior design approach blended contemporary and traditional Turkish elements, using vibrant tones and patterns to deliver a refreshed identity, enhance the customer experience, and attract a broader audience.

The interior embraces a warm, updated modern-traditional aesthetic, combining natural textures with Turkish traditional-inspired furniture and interior elements. The result is a welcoming, character-rich space that feels both contemporary and authentically Turkish.
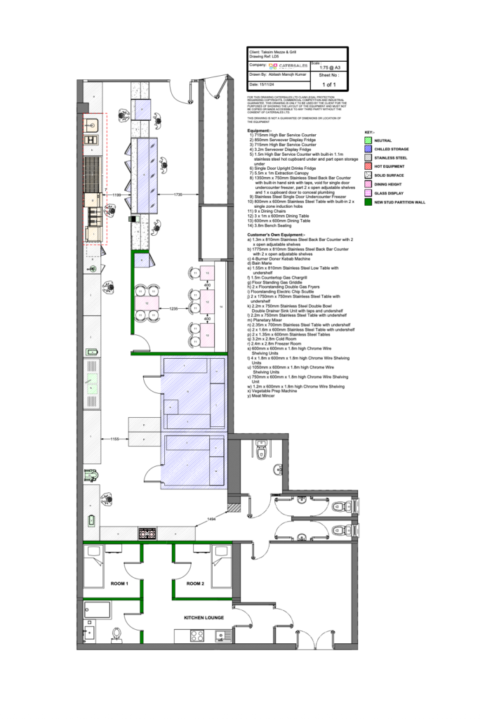
Thoughtful layout planning allowed us to incorporate a fully equipped prep kitchen alongside a spacious counter with full cooking facilities. To enhance the authenticity of the food offering, we introduced illuminated half-wall arches featuring traditional illustrated artwork, paired with a warm rust-golden finish to the front counter. Traditional patterns in vibrant colours were also applied to the shopfront, reinforcing the brand’s cultural identity. The result is a genuinely inviting food destination that resonates with the local community.