A Costa Coffee franchisee approached our team after encountering ongoing issues with the available options for their counter system. The solutions they had previously explored were either of poor quality, lacking the durability and finish required for a high-traffic coffee retail environment, or they were prohibitively expensive.
Working closely with the client, we reviewed the basic technical drawings initially provided by Costa Coffee. From these preliminary specifications, our team developed a complete set of detailed manufacturing drawings. This process involved carefully interpreting the original guidance and translating it into precise, production-ready documentation that ensured every component of the counter system would meet both Costa’s brand standards and the functional requirements of a busy store environment.

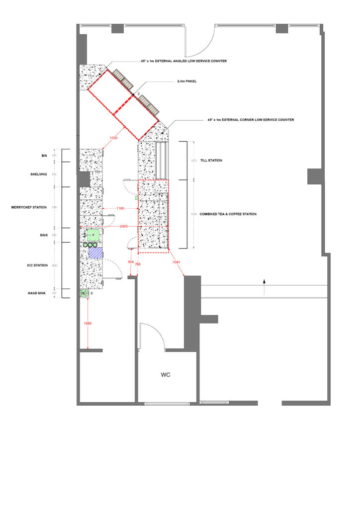
Detailed drawing for the counter system installed with in the Costa Coffee in Coulsdon Surrey.
Particular attention was given to material selection and construction methods. We matched the specified material requirements to ensure the finished counters were fully compliant with Costa’s operational standards, while also delivering a robust and high-quality finish suitable for long-term commercial use.
Within the bespoke counter system, we incorporated a range of integrated features designed to maximise efficiency, functionality, and visual impact. These included a built-in ice well, cup dispensers, POS integration, service voids for utilities, HI-MACS shrouds, MFC retail crates, pull-out milk drawers, and a carefully routed front panel that creates a distinctive panelling effect across the façade.
In addition to the front-of-house counter installation, we also supplied and installed a pass-through dishwasher for the kitchen area, ensuring the back-of-house operations were just as streamlined and efficient as the customer-facing space.
Despite the complexity of the project, we were able to complete the process— manufacturing to final installation—within a tight four-week timeframe. The counters were manufactured exactly to specification and installed on site efficiently, allowing the franchisee to move forward with confidence knowing they had a reliable, high-quality solution that met both their operational needs and budget expectations.