Donovan’s
Building on the success of Donovan’s Bakehouse in Spitalfields, this project focused on evolving the brand for its new suburban location—bringing an inviting, modern, yet retro identity that resonates with Caterham’s local community and provides a different offering to the local demographic.
In early 2025, Andrew approached us with an exciting new chapter for Donovan’s. With a new stakeholder on board, the vision was clear: evolve the Donovan’s brand and secure a permanent site to bring the next phase of the business to life. Having already built a loyal following through his successful market stall in Spitalfields, London—later expanding into a coffee van serving drinks on the go—Andrew was ready to establish a lasting presence.
After securing a site in the suburban town of Caterham, Surrey, the focus shifted to creating a space that felt both retro and contemporary. Drawing inspiration from Andrew’s love of 1970s design, and guided by market research and local demographics, the concept for a cosy, modern-retro café began to take shape. To align with this new vision, the original Donovan’s logo needed a thoughtful rebrand—one that retained its charm while embracing a warmer, more welcoming, and vintage-inspired aesthetic.

A Retro shop design featuring stained plywood cladding throughout the shop to complement the customers desire for a DIY rustic, warm and retro feeling to the shops appearance
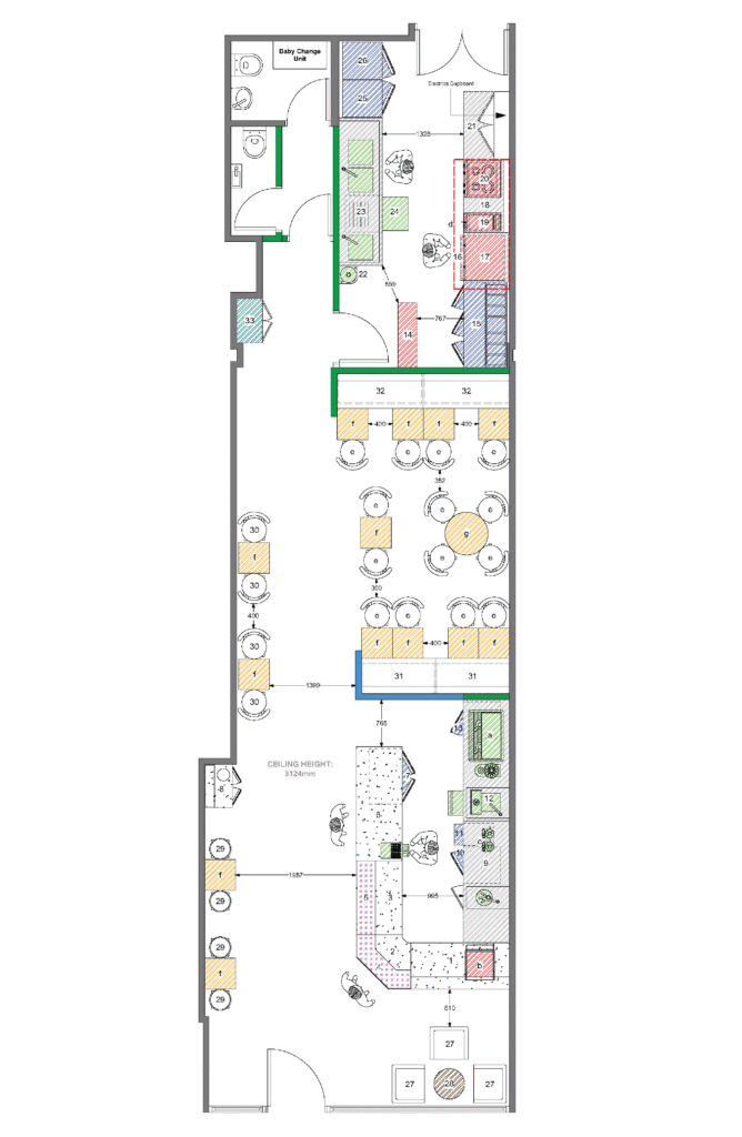
Andrew’s vision for an open commercial kitchen shaped the overall layout, creating a space that feels connected, transparent, and welcoming. By visually linking the kitchen with the rest of the shop, the design allows customers to feel part of the energy of the space while the layout naturally flows into smaller, cosy seating areas. Acoustic panelling was carefully integrated throughout to balance the liveliness of the environment, ensuring the space remains comfortable and inviting for different types of customers.
At the front of the shop, we installed an open counter system designed specifically for on-the-go takeaway customers, creating a strong visual focal point as soon as people enter. The counter was crafted from stained plywood to echo the retro aesthetic of the brand, with matching stained plywood wall cupboards installed above to create a cohesive and characterful finish.
Connection between the front and back of house was achieved through a glazed kitchen hatch set into the wall. This glass porthole-style opening allows front-of-house staff to easily communicate with the chefs while giving customers a glimpse into the kitchen, reinforcing the openness and theatre of the space without compromising the practicality of the working kitchen behind.